Delfzijl – Acantus heeft 18 appartementen aangekocht aan de Midscheeps in Delfzijl. De appartementen zijn gasloos, aardbevingsbestendig en worden in 2019 gebouwd. De verwachte oplevering is oktober 2019. De appartementen hebben twee of drie slaapkamers, de huurprijzen vallen binnen de sociale huur grenzen. Ze zijn geschikt voor verschillende huishoudengroottes.
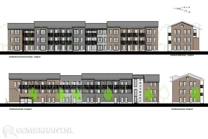
Complex De Houtwerf
Het complex aan de Midscheeps gaat De Houtwerf heten en wordt aan de buitenkant volledig in hout bekleed. In totaal worden er 18 appartementen gebouwd in het complex variërend van 80 tot 93 m2. De woningen zijn gasloos en het gebouw wordt voorzien van zonnepanelen.
Perspectief voor Delfzijl
Arie Heuvelman, ontwikkelaar van het plan: “Het is belangrijk in buurten en wijken een goede mix te ontwikkelen tussen koop en huur. Met de verkoop van dit complex aan Acantus realiseren we ook op Doklanden deze goede mix.” Eerder werd al bekend dat Acantus ook sociale huurwoningen gaat bouwen in de Schrijversbuurt in Delfzijl-Noord en aan de Spoorstraat in het centrum van Delfzijl.
Anita Tijsma, bestuurder van Acantus: “We zijn erg verheugd dat we nog een nieuwe ontwikkeling kunnen toevoegen aan de sociale huurmarkt in Delfzijl. Er is een lange tijd weinig gebouwd, met deze projecten kunnen we op verschillende plekken perspectief bieden.”







